Chapter notes

Photo: U.S. Bureau of Reclamation, “Methods used in placing and compacting bentonite-earth lining on Heart Mountain Canal, Wyoming, 1942” Canal Lining Manual, CSU Archives and Special Collections, Colorado State University, Fort Collins.

Photo: Bud Aoyama, “Hog Farm Pens.” Heart Mountain Digital Preservation Project: Ethel Ryan Collection, John T. Hinckley Library, Northwest College, Powell, Wyoming.

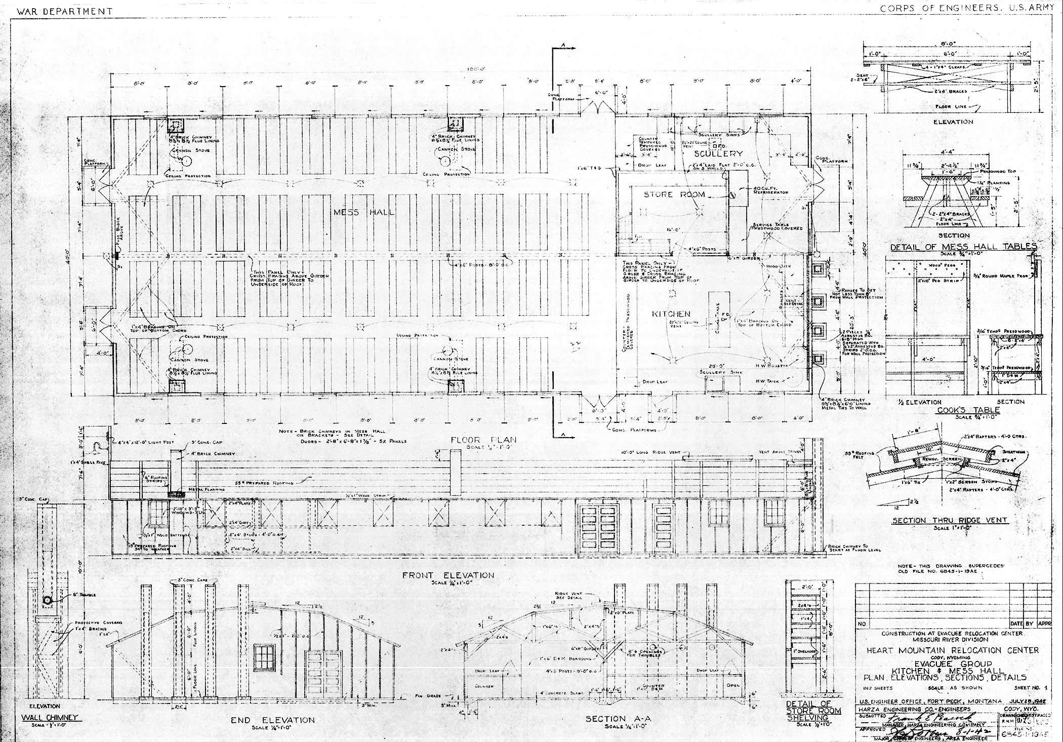
Residential mess hall layout and elevation. Technical Drawing no. 6845-1-19AE, J.H. Knights Papers Box 25, Folder 4, American Heritage Center, University of Wyoming.

Typical mess hall. Food allocations were delivered to each of the 42 mess halls every day except Sunday. However, milk was delivered every day. On average, for calendar year 1944, each mess hall received a little over 1,200 pounds of food daily.
Agriculture, Mess Halls, and Food
In 1942, Congress passed an appropriation of $11,500,000 for FY1943, to fund food for one year for all ten relocation centers, this amounting to a ration[1] costing $0.31. However, the cost of a ration providing a balanced, healthy diet cost $0.45, the maximum allowed. The difference was to be realized by the individual agricultural programs in each of the ten camps.
The land upon which Heart Mountain was built was arid, treeless, in its virgin state, supporting native plants and animals. It had never been touched by a plow, but it was what was available for creating an agricultural program vital to the Heart Mountain Camp. There was a lot of it — 42,000 acres.
When the Camp opened on August 12, 1942, there were no vehicles suitable for agriculture, and there were no facilities for maintaining a fleet of farming machinery if they were available. Heart Mountain had to develop its agriculture program from scratch. And it had to begin now for any chance of planting next year in time to produce a yield before the first frost.
While a network of irrigation ditches and canals existed to bring water to the land, it was incomplete, unable to provide enough water to the land around Heart Mountain to enable the growing of crops needed to feed the people in the Camp.
Since the main canal, the Heart Mountain Canal, located above and west of the Camp was incomplete and had never been used, the Camp, using Japanese labor, had to complete its construction in time to deliver water to the planned fields. These workers, all from Southern California, experienced their first taste of a Wyoming winter as they worked on completing the canal until the weather shut down all activity. In the spring of 1943, work resumed on the canal, and by some miracle, water was delivered on time to the brand-new fields surrounding the Camp.
So much else needed to be done: decide what crops to plant, what variety of these crops might grow the best, how much of them to plant, and estimate a yield for each. The soil chemistry in the areas selected needed to be examined for each planned crop. But first, the selected land had to be cleared of its native plants and prepared for successful planting in the coming Spring. How much time was available for land clearing before winter set in? What type of farm equipment had to be determined and then purchased? It was a critical issue with the nation at war and severe rationing/government control of almost everything. A maintenance and repair capability had to be created, also from scratch.
While the Camp’s population was blessed with a significant number of individuals possessing an agricultural background, a training program had to be established to train people to perform all these tasks
All of these critical activities had to be initiated at the same time – starting now.
Crops and livestock were produced in only two growing seasons – 1943-1944 and 1944-1945, yet despite the tremendous obstacles and problems faced by the Camp’s agricultural managers and the Japanese labor, yields were impressive in both years. The objective of the program—a more appealing and healthy diet in the mess halls— was accomplished.
[1] A ration is food for one person for one day.